推薦產品
EVI變頻變水溫空氣源熱泵是解決寒冷山區清潔供暖的有效方案
摘要:近年來,空氣源熱泵水系統采暖技術得到很大的發展,從2016年起,在北京周邊地區,空氣源熱泵煤改電清潔供暖技術得到用戶的認可,對清潔大氣環境減輕冬季霧霾起到了明顯的作用。寒冷山區多以散煤燃燒采暖為主,山區地域廣泛,村莊分散,解決好山區清潔供暖問題,一方面進一步改善大氣環境;
同時也提高了山區人民的生活品質,符合我國戰略發展要求。山區居民消費水平比較低,要求盡可能提高供熱系統COP降低能源消耗;晝夜溫差大,則要求供熱方案能夠在夜間提供高水溫白天提供低水溫實現供水溫度在高溫低溫間的自動調節,EVI變頻變水溫空氣源熱泵正好具備這一特點,因此從技術上看是解決寒冷山區清潔供暖的有效方案。
近年來,空氣源熱泵水系統采暖技術得到很大的發展,從2016年起,在北京周邊地區,空氣源熱泵煤改電清潔供暖技術得到用戶的認可,對清潔大氣環境減輕冬季霧霾起到了明顯的作用。寒冷山區多以散煤燃燒采暖為主,山區地域廣泛,村莊分散,解決好山區清潔供暖問題,一方面進一步改善大氣環境,同時也提高了山區人民的生活品質,符合我國戰略發展要求。
EVI(EnhancedVaporInjection)技術,即噴氣增焓技術,是一種在傳統單級壓縮制冷循環的基礎上,在單級壓縮機中間腔增加一個回氣口的冷媒循環技術,就壓縮機的結構而言,,典型的外部特征是一個排氣口,2個回氣口,下圖是EVI壓縮機實現冷媒循環的典型圖例之一。

EVI的本質是單級壓縮、2級節流、中間回氣,相比與單級節流單級壓縮,理論上減小了冷媒循環的不可逆損失,因此可以提高冷媒循環的熱效率,由于壓縮機機械結構及中間回氣口實現方式的差易,如轉子壓縮機和渦旋壓縮機,在一個壓縮周期內,中間吸氣口的壓力是再波動的,實驗驗證,EVI技術在2個方面作用明顯:
1)高壓比情況下,降低壓縮機的排氣溫度;
2)高壓比情況下,提高了蒸發器的吸熱能力,因此提高了制熱能力,同時提高了制熱COP;
變頻技術的核心要點在于改變了電機的動力特性,使其可以和負載的阻力特性相匹配,從而提高電機效率和電機對劇烈變化負載的適應性,同時實現“按需輸出”,因此,EVI變頻技術的應用,非常適合在環境條件變化范圍大,同時效率要求高的場合應用和發展。
一、寒冷山區供暖的現狀及環境條件特點:
1.北方山區村落分散,很多房屋順著地勢而建,建筑形式、房屋大小、建筑結構多樣化,各地有各地的風土人情和建筑習慣,在采暖方式上,基本是以散煤燃燒的小爐子、土炕為主,這樣的地理人文條件,決定了清潔供暖解決方案應該是分戶式的供暖方案;
2.山區居民收入普遍比較低,用戶非常在意運行費用,除了國家提供相應的用能補貼政策外,清潔能源供應方案應該有:可靠性高,運行費用低的特點,所謂的運行費用低,是以和當前散煤燃燒的情況相比;
3.山區的氣侯條件是:供暖時間比相鄰城市地區長1個月左右,總體平均氣溫也比相鄰城市地區低3~5度,且晝夜溫差大,這要求,供暖設備有自動調節供暖水溫的功能,而且,我們應該關注系統的綜合能效比SCOP,而不是系統在某一設計工況下的能效比;
4.山區的電力基礎設施相對薄弱,離城區越遠,戶均電力配套電功率越低,按照北京周邊地區的數居,原先山區居民電力配套,主要考慮了:照明、冰箱、洗衣機、電飯堡等低功耗電器的配電需求,日均電力約2KW,解決這一問題,一方面應該對現有電力設施升級改造,另一方面要求清潔能源供暖方案的電消耗功率盡可能小,設備啟動對電網的沖擊要求,設備運行對電網波動的容錯率要高;在清潔供暖方案中,有2大技術途徑:天燃氣和電,從能源的輸運、使用的安全行、可靠行等特征分析,采用電供暖方,相比于燃氣,具有如下優越性:
1)電力輸送,比燃氣輸送的效率更高;
2)在現有條件基礎上,電網升級改造的投資成本要低于燃氣管網投資成本;
因此,在確立以電能為主的清潔供暖方案后,主要的方向就是提高電能為來源的電供暖效率!在筆者調查山區方案的過程中,有個現象特別有意思:即居民在建筑特點和生活習慣上都充分考慮了本地區的氣侯特點,經過幾千年的變遷,當地居民發展出了獨特的安全過冬的建筑方式和生活方式,如下圖,是張家口宣化地區的一坐民宅,院子很大有100多平。


但真正使用的房間面積只有50來平,冬季只給1間房,最多2間房供暖,一個屋子長5米寬3米15平方大,冬季長期供暖面積也就30平米左右,房屋凈層高較矮約2.3~2.4米,尖屋頂,而且冬季在窗戶外和門外都掛上棉簾子,主要目的是不讓窗戶玻璃上結水或結冰,同時也起到了對門\窗的保溫作用!這些特點對我們考慮山區方案都是極有參考價值。
二、EVI技術能有效提高供水溫度,提升低環溫下機組的制熱能力和制熱COP
下表,我們對帶EVI和不帶EVI的2類系統,進行了對比測試,篇幅所限,此處只各列1組數據參考,更多的數據表明,所得到的規律性是一致的!


從上面數據可以看到,可以得到如下結論:
1)EVI對COP的影響:45度以下,水溫不高時,不帶EVI產品的COP比帶EVI產品的高,但水溫到55度時,情況就反過來,帶EVI產品的COP明顯高不帶EVI產品的,大約高20%;
2)EVI對制熱能力的影響:在35度,45度這樣的低水溫下,制熱能力隨環溫度降低而衰減的趨勢是一樣的,但在55度水溫時,帶EVI后的制熱能力衰減明顯慢過不帶EVI產品的,EVI技術使得在55度水溫下制熱能力的衰減和35/45度下制熱能力的衰減類似;
3)在低水溫情況下,EVI對制熱能的減緩制熱能力隨環境溫度的衰減,及制熱COP作用不明顯;
說明EVI技對低環溫下高水溫供熱,無論從能力上還是效率上都有很大幫助;

三、變頻變水溫供暖,是提高系統全年綜合能效比SCOP、降低能耗的有效途徑
對一已成的建筑物,室內熱負荷隨著環境溫度的變化而變化,室內散熱器的類型及布置已經完成的情況下,有3類方式來解決供熱量和熱負荷之間的平衡:
1)調節供給室內散熱器的水流量;
2)調節供給室內散熱器的水流通斷時間;
3)調節供水溫度;

在熱泵供暖系統里面,調節供水溫度是最有效率的控制方式,如上節中所舉的臺機器的試驗參數所顯示的,供水溫度對熱泵的COP有明顯影響,供水溫度越高,COP越低,從上面的數據看,溫度每升高1度,COP下降約2%;下圖,是空氣源熱泵制熱能力和建筑物所需負載在不同環溫下,對比變化的一對交叉曲線,在80%以上的時間,機組工作在部分負荷狀態,變頻變水溫機組,在如下幾個因素上,能大幅提高機器的綜和季節能效比SCOP:
1)在部分負荷的狀態下,降低供水溫度,降低熱泵的冷凝壓力,提高機組COP;
2)在部分負荷狀太下,降底機器的頻率,減小機組冷媒循環流量,在特定的水溫和特定的環溫下,提高媒媒循環的蒸發溫度,降低冷媒循環的冷凝溫度,提高機組的制熱COP;在北方山區,普遍情況晝夜溫差超過10度,建筑物的保溫不標準,采用地暖為末端的很少,多數使用散熱器作為采暖末端,要求機組供水溫度隨著環境溫度自動調整,以提高全年縱合能效比SCOP,降低全年使用費用;

我國現有標準IPLV(H)不能反應機組在變水溫下的能效狀況,我們在另一篇文章《基于設計熱負荷的空氣源熱泵變水溫運行能效評估方法》中介紹了基于房屋設計溫度/設計水溫的的變水溫全年季SCOP計算方法,讀者很容易計算出在設計供暖水溫為55度時,空氣源熱泵全年季變水溫季節效率,這個結果,和機組真正運行的結果,應該可以做大最大程度相近!大家可以參考!
四、EVI變頻變水溫空氣源熱泵分戶供暖典型方案
以北京延慶地區120平方米農村居民的常用戶型為例(如圖一)

(圖一)
室外氣象設計計算參數:

經負荷計算可得熱負荷計算書(如圖二):

(圖二)
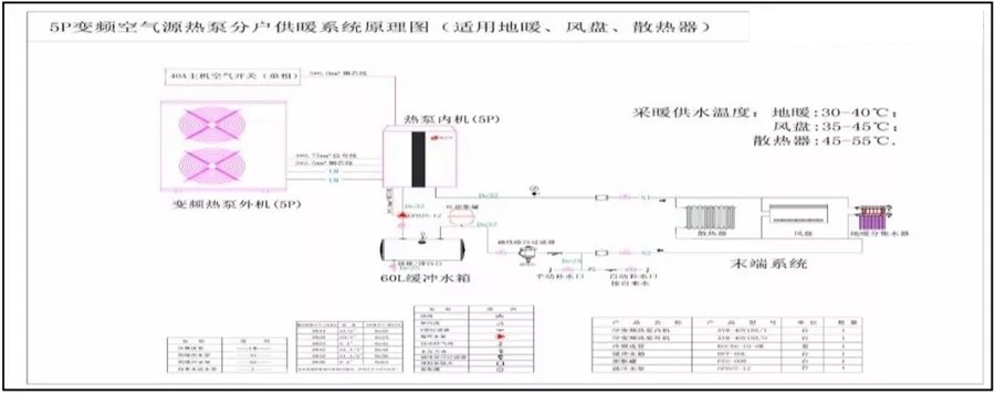
由上表可知北京延慶地區120平方米的農村居民常用戶型采暖所需熱負荷約為7.5KW,室外環境溫度為-12℃時,其制熱量約為8.65KWd的EVI變頻變水溫機組,額定制熱輸入功率為3.73KW,冬季可在-25℃的環境中正常供暖,確保山區農戶冬季采暖需求。系統原理圖:

采暖季運行費用預估:以北京地區采暖季120天計算;采暖季運行費用預估:以北京山區采暖季135天計算。

案例運行效果分析:

以上表格信息由遠程監控測試得出,該戶型平均每天耗電量約為42.9kw.h,平均每天每平方米耗電量約為0.23kw.h;系統節能效果顯著,運行穩定,運行效果良好,用戶滿意。
上述例子表名,在北方寒冷山區,采用EVI變頻變水溫空氣源熱泵分戶式供熱方案,具有如下優點:
1)在環境溫度很低情況下,制熱能力衰減量較小,且可以提供55度以上的高水溫,既可適用如地暖\低水溫散熱器等新型散熱末端,,也可適應暖氣片;
2)變頻變水溫技術,可以明顯提高供熱系統運行能效比,相比于定水溫供熱,綜合能效比提高30%以上,降低了用戶的運行費用,山區晝夜溫差大,一天之內也應該不斷變化供水溫度以達到最佳運行能效比,這一點,對經濟能力較低的山區用戶尤為重要;
3)EVI變頻變水溫空氣源熱泵,啟動電流小,對電壓波動的容錯率高,適合山區電網狀況,最大程度上確保系統穩定運行;
當然,由于山區農村居民供熱事關百姓生命財產安全,近年各種極端天氣頻現,我們在推進以電能為主的高效率清潔供暖方案時,應該做好預備措施,在歐洲,遠離城區居民家庭必備燃柴用的壁爐,以備極端天氣造成電網中斷的突發狀況,這一方法,值得我們借鑒!